新築一戸建て 上尾市浅間台3丁目5号棟
所在地
      上尾市浅間台3丁目5号棟
    
                  4,498万円
              
      
                                            30.30坪
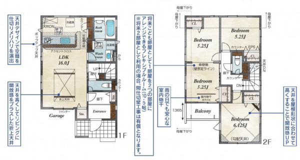
                                      3LDK
                                    
    *全6棟
*南西道路につき陽当り良好!
*駅、商業施設、公共施設が徒歩圏内
*駐車スペース2台並列可(車種による)
*太陽光パネル標準装備
*都市ガス・本下水
親愛浅間台保育園:約300m(徒歩4分)
花園幼稚園:約570m(徒歩8分)
ベルク上尾春日店:約640m(徒歩8分)
ドラッグスギ中妻店:約710m(徒歩9分)
ローソン上尾浅間台三丁目店:約280m(徒歩4分)
月々の
支払例
      支払例
万円
          年
          %
          円
        ※埼玉りそな銀行/借入金4,498万円、返済期間35年、金利0.640%変動)の場合
※審査により金利は変わる可能性があります。
物件概要
- 交通
- 
  JR高崎線 北上尾駅 まで 徒歩12分 JR高崎線 上尾駅 まで 徒歩26分 
- 接道状況
- 南西側 公道4m
- 土地面積
- 112.88㎡ (34.14坪)
- 建物面積
- 100.19㎡ (30.30坪)
- 築年数
- 2025年 (令和7) 11月 完成予定
- 建ぺい率
- 60%
- 容積率
- 100% (一部150%を含む)
- 土地権利
- 所有権
- 構造および階数
- 木造 地上2階建
- 小学校区
- 大石 ( 1300m )
- 中学校区
- 大石 ( 850m )
- 私道負担
- 地目
- 現況
- 建築中
- 引渡時期
- 予定 2025年12月 中旬
- 駐車場
- 2台
- 上水道
- 公共
- 下水道
- 公共
- ガス
- 都市ガス
- 都市計画
- 市街化区域
- 用途地域
- 1種低層 (一部1種中高を含む)
- 建築確認番号
- 第25UDI1W建04373号
- 設備・条件
- 備考
- 
  ・本分譲地内に井戸がございましたが、お祓いの上撤去しております。
 ・共有地 ①(100㎡)1・2号棟持分1/2 共有地②(100㎡)2・3号棟持分1/2 共有地③(100㎡)3・4号棟持分1/2 共有地④ 4・5棟持分1/2
 ・5・6号棟 協定道路有り、地役権設定登記は買主負担
 ・清掃施設(2.10㎡)各持分有り1/6
 ・5号棟 建物面積(車庫部分2.48㎡含む)
 ・太陽光発電システムはリース契約となります。リース期間 10年間 (期間終了後は無償譲渡されます)
 毎月利用料: 1号棟8,756円 2号棟9,053円 3号棟9,053円 4号棟9,053円 5号棟8,481円 6号棟8,481円 (全棟 税込み)
 
 
- 取引態様
- 仲介
 
             
             
           
          