新築一戸建て 上尾市原市北1丁目

  • 新築戸建て特集
  • 上尾市原市北、新築一戸建ての間取り画像です

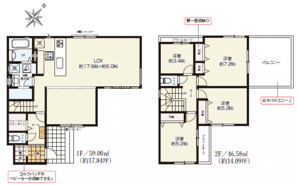
    【間取り】

    所在地
    上尾市原市北1丁目
    4,498万円
    31.93坪 4LDK
    月々の
    支払例
    万円
    %

    ※埼玉りそな銀行/借入金4,498万円、返済期間35年、金利0.640%変動)の場合

    ※審査により金利は変わる可能性があります。

    物件概要

    交通

    埼玉新都市交通伊奈線 沼南駅 まで 徒歩5分

    接道状況
    北西側 公道4.0m
    北東側 公道16.0m
    土地面積
    公簿 139.79㎡ (42.28坪)
    建物面積
    105.58㎡ (31.93坪)
    築年数
    2026年 (令和8) 4月 完成予定
    建ぺい率
    60%
    容積率
    200%
    土地権利
    所有権
    構造および階数
    木造 地上2階建
    小学校区
    原市 ( 840m )
    中学校区
    原市 ( 1130m )
    私道負担
    地目
    宅地
    現況
    建築中
    引渡時期
    相談
    駐車場
    普通2台
    上水道
    公共
    下水道
    公共
    ガス
    都市ガス
    都市計画
    市街化区域
    用途地域
    2種住居
    建築確認番号
    第25UDI1W建09488号
    設備・条件
    備考
    取引態様
    仲介
    周辺地図を確認する

    (弊社管理番号: 3007554)

    【更新日】2026年01月23日

    【次回更新日】2026年03月23日

    その他周辺物件

    最近チェックした物件

    会社紹介 Company

    この物件は22人の方が
    興味を持っています

    上尾市・桶川市の不動産情報

    上尾店

    HPを見たと言ってお気軽にお問い合わせください

    無料相談・お電話窓口

    0120-356611
    営業時間:9:45〜18:00 定休日:火曜日・水曜日