マンション センチュリー桶川西

  • 駅徒歩10分以内
  • 1/2
    桶川市西、マンションの外観画像です

    【外観】

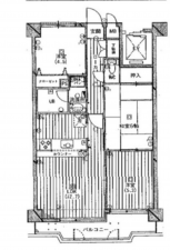
    桶川市西、マンションの間取り画像です

    【間取り】

    桶川市西、マンションの外観画像です
    桶川市西、マンションの間取り画像です
    桶川市西、マンションの外観画像です
    桶川市西、マンションの間取り画像です
    所在地
    桶川市西2丁目
    1,100万円
    61.77m² 3LDK

    *オーナーチェンジ物件:利回り8.72%
    *南向きにつき陽当り良好
    *宅配BX

    オーナーチェンジ物件:賃貸中 
    マルサン桶川店         徒歩5分
    おけがわマイン         徒歩13分
    セブンイレブン桶川西2丁目店  徒歩7分

    月々の
    支払例
    万円
    %

    ※埼玉りそな銀行/借入金1,100万円、返済期間35年、金利0.640%変動)の場合

    ※審査により金利は変わる可能性があります。

    物件概要

    交通

    JR高崎線 桶川駅 まで 徒歩9分

    専有面積
    壁芯 61.77㎡
    バルコニー面積
    7.93㎡
    バルコニー方向
    所在階/階数
    2階/4階
    築年数
    1990年 (平成2) 4月
    築36年
    建ぺい率
    容積率
    土地権利
    所有権
    構造および階数
    RC(鉄筋コンクリート) 造 地上4階建
    総戸数
    27戸
    小学校区
    桶川 ( 320m )
    中学校区
    桶川東 ( 1600m )
    地目
    現況
    賃貸中
    引渡時期
    即時
    駐車場
    空有
    駐車場月額
    7,000円/月
    管理形態
    全部委託
    管理方式
    管理人巡回
    管理会社
    管理費
    9,350円
    修繕積立費
    10,930円
    上水道
    公共
    下水道
    公共
    ガス
    都市ガス
    都市計画
    市街化区域
    用途地域
    1種住居 (一部準住居を含む)
    設備・条件
    エレベーター
    備考
    利回り:8.72% 年間予定賃料収⼊:96.00万円
    取引態様
    仲介
    周辺地図を確認する

    (弊社管理番号: 5001413)

    【更新日】2026年04月13日

    【次回更新日】2026年05月13日

    その他周辺物件

    最近チェックした物件

    会社紹介 Company

    この物件は59人の方が
    興味を持っています

    上尾市・桶川市の不動産情報

    上尾店

    HPを見たと言ってお気軽にお問い合わせください

    無料相談・お電話窓口

    0120-356611
    営業時間:9:45〜18:00 定休日:火曜日・水曜日